- Record Type:OSHA Instruction
- Current Directive Number:CPL 02-02-031
- Old Directive Number:CPL 2-2.31
- Title:Cotton Dust Manual
- Information Date:
- Standard Number:
OSHA Instruction CPL 2-2.31
January 16, 1981
Office of Compliance Programming
Subject: Cotton Dust Manual
-
Purpose. This instruction provides guidelines for using the Cotton Dust Manual.
-
Scope. This instruction applies OSHA-wide.
-
References.
-
Industrial Hygiene Field Operations Manual (IHFOM).
-
Field Operations Manual (FOM).
-
-
Action. Regional Administrators shall ensure that:
-
All policies and procedures described in the Cotton Dust Manual are initiated forthwith.
-
One copy of this instruction is retained with the Cotton Dust Manual, and one is filed in the OSHA Directive System Binder. Two copies of this instruction are included with the manual for this purpose.
-
-
Federal Program Change. This instruction describes a Federal program change which affects State programs. Each Regional Administrator shall:
-
Ensure that this change is forwarded to each State designee.
-
Explain the technical content of the change to the State designee as requested.
-
Ensure that State designees are asked to acknowledge receipt of this Federal program change in writing, within 30 days of notification, to the Regional Administrator. This acknowledgment should include a description either of the State's plan to implement the change or of the reasons why the change should not apply to that State.
-
Review policies, instructions and guidelines issued by the State to determine that this change has been monitoring activities (accompanied inspections and case file reviews) shall also be used to determine if this change has been implemented in actual performance.
-
Bruce Hillenbrand
Acting Director, Federal Compliance
and State Programs
| DISTRIBUTION: | National, Regional and Area Offices A Compliance Officers State Designees NIOSH Regional Program Directors |
This manual establishes OSHA policy and procedures necessary for enforcing:
| º | 29 CFR 1910.1043 and 1910.1000 (for cotton dust) at yarn manufacturing operations; |
| º | 29 CFR 1910.1043 at slashing, weaving, knitting and waste house operations; and |
| º | 29 CFR 1910.1043 at cotton warehousing operations on the premises of the cotton's processors (e.g., on the premises of a cotton textile mill). |
This manual does not cover enforcement of 29 CFR 1910.1043 or 1910.1000 at construction work operations performed in work environments (e.g., card rooms) that contain airborne cotton dust.
The manual supplements the Field Operations Manual (FOM) and Industrial Hygiene Field Operations Manual (IHFOM), as a special program limited to cotton dust. In areas where the guidance of this manual differs from that of the FOM or IHFOM, however, this manual's guidance takes precedence.
Chapter I of this manual provides general, overall guidance for a cotton dust inspection. The remainder of the manual provides more detailed guidance on various aspects of the enforcement process.
CONTENTS
TITLE/SUBJECT
Chapter
-
- Purpose
- Preinspection Planning
- Manpower
- Inspection Teams
- Equipment
- Scope of Inspection
- Opening Conference
- Walkaround
- Exposure Evaluation
- Employer Sampling
- OSHA Sampling -- When Required
- Sampling Strategy
- Yarn Manufacturing -- 29 CFR 1910.1000
- Dividing Industrial Hygienists Tasks
- Determining Exposure Using the Vertical Elutriator
- Evaluation of Industrial Hygiene Programs
- The Written Compliance Program
- Section H has been deleted
-
Interpretations and Inspection Procedures
- Purpose
- Scope
- 29 CFR 1910.1043(h) Definitions -- "Washed Cotton"
- 29 CFR 1910.1043(c) Permissible Exposure Limits -- Novel Work Shifts
- 29 CFR 1910.1043(d) Exposure Monitoring and Measurement
- Monitoring With An Equivalent Sampler
- Evaluating Employer's Sampling and Monitoring
- 29 CFR 1910.1043(e)(4) Mechanical Ventilation
- 29 CFR 1910.1043(f) Use of Respirators
- 29 CFR 1910.1043(g) Work Practices
- 29 CFR 1910.1043(h) Medical Surveillance
- OSHA Access to Medical Records
- Extent of Medical Surveillance Investigations
- Opportunity for Employee Representative to Accompany Compliance Officer
- Evaluation of 29 CFR 1910.1043 (h)(1)(ii) -- Physician's Supervision
- Initial Medical Examination
- Triggering Level
- Medical Examination Prior to Initial Assignment
- Questionnaire Interpretations
- Periodic Examinations
- Frequency of Physician's Written Opinion -- 29 CFR 1910.1043(h)(5)
- Content of Physician's Written Opinion -- 29 CFR 1910.1043(h)(5)
- Examination and Test Results
- Health Risks and Recommended Limitations
- Physician's Written Opinion -- Investigation and National Office Consultation
- 29 CFR 1910.1043(1) Observation of Monitoring
-
Plant Information Obtained During Walkaround: Picking Area
- Purpose
- Scope
- Picking Area
- Picking Personnel
- Picking Operations
- The Fiber Collection Hopper and Picker Feeder Conveyer
- Pickers
- Garnetting of Drawing and Roving Waste
- Reworkable Card Waste Hopper
- Dust Control
- Shift Work
- Electrical Outlets
- Employer's Measurement Results
- Air Currents
-
- Purpose
- Scope
- Picking Area
- Carding Area
- Description
- Carding Personnel
- Carding Operations
- Sampling Strategy
- Drawing and Roving Areas
- Description
- Personnel and Operations
- Electrical Outlets
- Sampling Strategy
- Exposure Calculations
- Spinning
- Description
- Personnel and Operations
- Electrical Outlets
- Sampling Strategy
- Exposure Calculations
- Winding
- Description
- Personnel and Operations
- Waste Reclaiming Area
- Sampling Strategy
- Exposure Calculations
-
Procedures for Using the Vertical Elutriator
- General Operation Procedures
- Use of Professional Judgment
- Instrumentation
- Flow Rate
- Filter Cassettes
- Preparing for Sampling
- Obtaining Instruments
- Number of Instruments
- Transportation
- Preweighed Cassettes
- Calibration Check
- Electrical Power
- Setting up the Elutriators in the Field
- Sampling
- Cleaning the Vertical Elutriator
COTTON DUST INSPECTION
-
Purpose. This chapter provides general guidelines for managing and performing cotton dust inspections.
-
Preinspection Planning.
-
Manpower. Where sampling is necessary, approximately 40 or more man-days of field time and filter weighing time will be necessary to inspect an average textile mill, using the procedures described in this chapter.
-
Inspection Teams. A team inspection is necessary when sampling will be performed because sampling devices are difficult for one person alone to transport. The size of the team depends upon the size of the plant to be inspected, but should be limited to four people because of the logistical problems encountered in setting up the vertical elutriators' in the plant. Most teams will consist of three compliance officers -- two industrial hygienists and a safety specialist or safety engineer who is competent at inspecting all aspects of electrical wiring.
-
Equipment.
-
Vertical elutriators will be allocated to Area Offices based upon their projected need to use them. Area Offices not equipped with the necessary equipment for an inspection can arrange to obtain it through the Regional Technical Support Office. A list of sampling equipment necessary for an inspection is shown in Figure I-1.
-
Before going to the inspection site, the equipment must be checked to see if it performs properly. Appropriate calibration checks of the flow rate must be made using a 2- or 3-liter bubble meter. Examine the elutriator shell for dents which could change the device's flow characteristics and invalidate the results.
LIST OF EQUIPMENT AND SUPPLIES
FOR COTTON DUST SAMPLINGItem Name Quantity Vertical elutriator (VE) approved
for use in Class III locations.5 to 10 for textile mill ____________________________________________________ 2- or 3- liter burette (for office)
for calibrating VE.2 per Area Office ____________________________________________________ Extra tubing for elutriators. Approximately 25 feet. ____________________________________________________ Electrical tape for sealing
cassettes to elutriator.1 roll per industrial hygienist ____________________________________________________ Duct tape for taping down
electrical cords.Several rolls ____________________________________________________ 3-piece preweighed cassettes,
37 millimeter diameter, with
PVC filters.3 per elutriator per
sampling day, plus 2 per
personal sampling system per
sampling day.____________________________________________________ Cassette sealing bands. Based on number of cassettes taken ____________________________________________________ Cassette carrying case. Based on number of cassettes taken ____________________________________________________ Tool Kits - 10" crescent wrench;
1/8 and 1/4 spade screwdriver;
#2 (medium) Phillips screwdriver;
8" pliers; tool bag or box.1 per every 5 VE's ____________________________________________________ Voltmeter. 1 ____________________________________________________ Circuit Tester (for checking polarity
and grounding).1 ____________________________________________________ Extension cords in several lengths,
100 feet, 50 feet and 25 feet. [Cords
shall be junior hard service or hard
service, or type SJO or SO, and
shall have three, size 14 (AWG),
current-carrying conductors.]100 feet for each VE ____________________________________________________ Multi-terminal electrical boxes. 1 for each VE ____________________________________________________ Extension cord coverplates for
running cords across aisleways (optional).3 to 8 ____________________________________________________ Rubber stoppers with short tube
for VE calibration.2 to 6 ____________________________________________________ Station wagons for transporting
VE's and equipment to plant.1 for every 4 VE's ____________________________________________________ NOTE: All items are local purchase except the vertical elutriators. The station wagons are GSA rentals. Figure I-1 -
A sufficient number of preweighed filters to last through the inspection must be taken to the inspection site. As a rule of thumb, take three filters per day for each vertical elutriator sampling system, and two filters per day for each personal sampling system.
-
-
Scope of Inspection. In general, inspections under the cotton dust standard should cover the entire plant affected by cotton dust. Under circumstances where a complete inspection is not appropriate, the case file shall contain reasons to justify the limited scope of the inspection.
-
-
Opening Conference.
-
Obtain information regarding the plant operation, such as:
-
Type of product produced.
-
Blends (percent cotton, percent synthetic).
-
Grade of cotton, percent grade used, and the locations where it is used.
-
Description of operations and plant.
-
Plant layout diagrams, if available.
-
Types of operations.
-
Number of employees at each operation.
-
Terms of employment. Incentive? Salary? Hourly?
-
Pattern of hours worked -- number of shifts, number of hours per day, number of hours per week.
-
General job description of employees -- number of machines tended and percent of time spent at different locations (including lunch and break periods).
-
Copy of respirator program.
-
Copy of training program.
-
Copy of work practice program (start-up date, June 27, 1980).
-
Copy of compliance program (start-up date, March 27, 1981).
-
-
Quickly evaluate the results of the employer's cotton dust monitoring program prior to the walkaround. Locations of employer sampling should be marked on the plant layouts, if possible, to aid in determining later whether the sites were chosen properly.
-
-
Walkaround.
-
Plant Information During the Walkaround. The industrial hygienist should gather information to assess the adequacy of the sampling results made by the employer, and data to establish an OSHA sampling strategy. Specifically:
-
Identify machines operated or tended by a representative employee in each area of the plant.
-
Consider the job description of the employee as provided during the opening conference.
-
Interview the employer and employees as necessary to establish the locations and work patterns.
-
Identify the employer's sampling locations; ask the reasons for choosing them; and record comments and notes on the adequacy of the locations for determining employee exposure.
-
Record pertinent comments on the ventilation of the workplace, such as the general air flow patterns and the dust sources in the area. This description should be very general, to help estimate dust levels. A more specific analysis of the engineering and work practice controls will occur during the sampling.
-
-
If the employer does not have an adequate plant layout, sketch a plant layout for each plant area or process.
-
Identify electrical outlets for OSHA vertical elutriator sampling. Select for use outlets that are as near as possible to the locations selected for the samplers.
-
Determine if the outlets provide 60 cycle alternating current and 110-120 voltage. Check for correct polarity and grounding at the outlets.
-
Electrical Grounding.
-
Determining Grounding Conditions. If the outlets contain only two slots and therefore do not provide a ground path, determine if there are moist floors, metal pipes, etc., within 8 feet (horizontally) of any of the selected sampling locations that could serve as grounding return paths from the samplers.
-
Use of Outlet Adapters. If any of the samplers will be placed within 8 feet (horizontally) of a possible grounding return path, auxiliary conductive grounding paths must be provided. This can be done by means of "2-slot to 3-slot adapters" which have a grounding connection wire. The adapters are plugged into the 2-slot outlets and the grounding connection wires are attached to grounded surfaces to form 3-slot outlets.
-
Finding Grounded Surface. A grounded surface will have to found by using a voltmeter or ohmmeter. Since the retaining screw for the outlet's cover plate is the most convenient place for attaching the grounding connection wire, this is the logical place to begin the search for a grounded surface. If the screw is not grounded, and you must find another surface elsewhere that is grounded to use, you will most likely have to use an insulated conducting wire as an interconnection leading from the adapter's ground wire in order to reach the grounded surface.
-
-
Locate the circuit protective devices for the outlets and determine if they are appropriate. They must be either fuses or circuit breakers with no more than 15 ampere capacity if protecting outlets for 2-prong plugs, or to more than 20 ampere capacity if protecting outlets for 3-prong plugs.
-
If the electrical wiring is found to be defective, issue citations and either:
-
Postpone sampling until the employer corrects the violative condition(s), or
-
Conduct sampling with battery-powered vertical elutriator sampling systems.
-
-
If the electrical wiring is in satisfactory condition, consult the employer about the ampere load on the circuits which you plan to use to power the samplers to assure that you will not overload the circuits and trip the breakers or blow the fuses. The samplers draw 4 amperes of current.
-
For an example of the type of information obtained during a walkaround in a picking area of a textile mill, see Chapter V of this manual.
-
-
Exposure Evaluation.
-
Employer Sampling. Thoroughly evaluate all aspects of the employer's sampling program. Consider the following:
-
Sampling Device. If an equivalent device is used, collect the data used by the employer to support the equivalence determination. (See Chapter II, paragraph E. of this manual.)
-
Calibrations. Evaluate the type, frequency and accuracy of air flow calibrations.
-
Sample Locations. The employer's sample locations must reflect employee exposure.
-
Sampling Time. The employer's samples must be collected for a period of time long enough to reflect employee exposure (a minimum of 6 hours).
-
Air Flow Rate. If a critical orifice is used to control the air flow rate, determine whether the employer's pump draws sufficient vacuum. (See Appendix A of the cotton dust standard.)
-
Weighing Methods. The employer's weighing methods should include enough blank filters and must be technically accurate.
-
Training. Evaluate the training of the person(s) who collect samples for the employer.
-
Calculations. The calculations for dust concentration must be properly done.
-
Reasonableness. The employer's exposure determinations should reflect the conditions observed in the plant during the walkaround.
-
-
OSHA Sampling -- When Required.
-
Verification of Employer's Data. OSHA sampling is required if the employer's data shows exposures below the PEL, and OSHA does not accept the validity of the employer's data without verification.
-
Monitoring Institution of Controls. In every area of the plant where exposures to cotton dust exceed the new PEL, OSHA sampling is necessary at some time prior to the date granted in the standard for instituting engineering and work practice controls to correct such overexposures. This sampling will assist in monitoring the employer's progress in instituting the controls.
-
Documentation.
(1) Regardless of the validity of the employer's data, OSHA sampling is required to document the exposure levels if: (a) A violation is predicated on employees being exposed above the PEL; or (b) The levels of exposure affect the classification of a violation, the size of the penalty, or the grouping policy. (2) Many provisions of the cotton dust standard -- such as those relating to medical surveillance and employee education and training (29 CFR 1910.1043(h) and (i)) -- apply if employees receive ANY exposure to cotton dust, or if ANY cotton dust is present in the workplace. Sampling will be required to support violations of these provisions only insofar as it is needed to document that there is some exposure to cotton dust, or that there is cotton dust present.
-
-
Sampling Strategy. Prepare a sampling strategy in which the exposure of one or two identified employees is evaluated in each area sampled (such as opening, waste house, picking, carding, drawing, etc.). Chapter VI of this manual provides descriptions of sampling strategies for several areas of a fictitious plant for demonstration purposes. When developing a sampling strategy, consider the following:
-
Approximately four or five vertical elutriator measurements are used to determine an employee's exposure in most mill operations. In some areas, if an employee's work area is limited, two vertical elutriators will be sufficient.
-
Choose a sampling site based on the following factors:
(1) Select employees who have limited and well-defined work areas. For example, a weaver should be selected for exposure evaluation rather than a loom fixer. (2) Sampling sites should reflect the exposure of one or two identified employees, as well as approximate exposures of most of the other employees in the area. For example, a sampling site in the middle of the room is preferable to an unoccupied corner or remote part of an area. (3) Do not locate vertical elutriators in areas with strong air currents (i.e., beside a fan or vent discharge) if this can be avoided. (4) Avoid locating vertical elutriators in areas where the machines may be shut down during the work shift because of production requirements. Typically, there are certain machines which, due to their age or state of repair, are shut down when production requirements permit. (5) Vertical elutriators should be placed as close to the employees' work area as possible without interfering with material handling or employee movements. (6) Most cotton mills have a limited number of 110-volt outlets. .In some cases up to 200 feet of extension cords will be required. -
Sample sites selected should be marked on the plant sketch.
-
Normally, OSHA will need to sample only on the daylight shift. Sampling on other shifts is at the discretion of the supervisor, and depends For example, if waste-cotton is handled only during the second shift, sampling should be performed.
-
The sampling period will be a minimum of 6 hours, which represents a full-shift exposure to cotton dust.
-
-
Yarn Manufacturing -- 29 CFR 1910.1000. To determine compliance in yarn manufacturing with 29 CFR 1910.1000, collect personal total dust samples. Employee exposures sampled with personal samples should be limited to those sampled with the vertical elutriator. Personal sampling is mandatory in yarn manufacturing whenever VE samples are collected, until compliance with 1910.1043(e) is achieved.
-
Dividing Industrial Hygienists' Tasks. Experience has shown that sampling with electrical elutriators can be accomplished most efficiently when working in pairs. The following are suggestions for splitting the workload (for convenience, the two industrial hygienists will be labeled IH "A" and IH "B"):
-
Both industrial hygienists will transport the equipment, carry it to the sampling site and prepare it for sampling.
-
IH "A" records all sampling notes while IH "B" secures the cassettes, turns on the pump, makes adjustments to the tubing and does other sampling tasks.
-
During the period between checking the vertical elutriator, the work is divided as follows:
(1) IH "A" does the following: (a) Observes the work locations, duties, and movements of the employee(s) whose exposure is being sampled. (b) Documents the work patterns of the employee(s) whose exposure is being sampled. This would include time spent in work location and time spent in other locations (such as lunchrooms). (c) Observes which machines are running and which are down. (d) Evaluates work practices. (e) Evaluates respirator use. (f) Makes notes on all aspects of industrial hygiene programs. (2) IH "B" does the following: (a) Takes notes on ventilation systems for the machines in the entire area under study, not just for those located where sampling is being conducted. These notes will include facts such as the number of pickup points and their location, manufacturer of local exhaust ventilation system, when installed, whether the system is designed according to sound local exhaust ventilation principles, etc. (b) Documents the air cleaning system. This includes: 1 Type of air cleaned -- filters, water wash, etc; 2 CFM of air recirculated; 3 Which departments have air cleaning systems; 4 Which departments are served by each air cleaning unit; 5 Particle size removed; 6 Percent of the particles removed; 7 How often filters are changed; 8 When the system was installed; and 9 The manufacturer of the system. (c) Gathers information on the general ventilation system. This includes: 1 The total air volume exhausted; 2 Room air changes per hour; 3 Direction of air currents in the area; 4 Temperature, humidity, air conditioning, condition of duct work, etc.) (d) Keeps records on the status of the air recirculation system as a function of time during sampling (i.e., full recirculation, full outside air intake, and percent recirculation). (e) Evaluates work practices of employees whose exposures are not being sampled. (f) Evaluates employer's maintenance program for ventilation system. (See Chapter II of this manual.)
-
-
Determining Exposure Using the Vertical Elutriator. The individual vertical elutriator measurements that are located in the described work area of the employee are averaged arithmetically. This average value is then converted to a time-weighted-average to determine the employee's exposure.
-
The 6-hour sampling period is representative of the full-shift exposure. Therefore, make no adjustment for unsampled time unless the worker is not present in the locations covered by the vertical elutriator measurements (such as in the lunchroom).
-
In most cases, the worker will move about the work area tending to machines. The average of the vertical elutriator measurements will represent the worker's exposure. Chapter VI of this manual contains examples of exposure calculations.
-
In some cases the worker will spend time in several distinct work locations. These cases will require time-weighting. The best example of this is the Abbott winder operation, where employees spend most of the work shift at one spot, but move about several machines for a short period throughout the day.
-
-
-
Evaluation of Industrial Hygiene Programs.
-
At some time during the inspection, an OSHA industrial hygienist must evaluate the industrial hygiene programs required by the standard, such as medical surveillance, training, signs and recordkeeping.
-
Chapter II of this manual provides guidance for interpreting some of the industrial hygiene provisions, and for investigating compliance with them.
-
-
The Written Compliance Program.
-
The written compliance program is required by March 27, 1981. This program must set forth a schedule whereby the employer will reduce exposures to or below the permissible exposure limit solely by means of engineering and work practice controls, by March 27, 1984.
-
Examine and evaluate the employer's program, and determine whether the schedule for development and implementation of engineering and work practice controls is designed to (and will) achieve compliance with the PEL by March 27, 1984.
-
Until September 1982 any citation for an inadequate compliance program must be approved by the Office of Field Coordination before issuance.
-
Enforcement action will be taken in cases where the compliance program does not project the implementation of these controls by March 27, 1984, or where it appears that the schedule for implementation is so extended to render completion by that date unlikely.
-
In addition, a citation for violation of the compliance program shall be issued where the employer does not meet the scheduled implementation dates in the program.
-
(Section H has been deleted)
-
Purpose. This chapter provides guidelines for investigating compliance with selected provisions of the cotton dust standard, and provides interpretations of the standard.
-
Scope. This chapter does not systematically explain each provision of the standard, but rather selected provisions about which many questions have been raised, or that have not been previously addressed by other directives. The standard itself should be at hand while reading this material.
-
29 CFR 1910.1043(b) Definitions -- "Washed Cotton".
-
If, during an inspection, an employer claims exemption from the cotton dust standard because washed cotton is processed, obtain the following:
-
The washing parameters.
-
Information gained from employee interviews concerning symptoms of byssinosis.
-
-
For assistance with the analysis, send this information to the National Office, Directorate of Technical Support, through proper channels.
-
In order for dyed yarn to be considered washed cotton, it must have been thoroughly washed in hot water.
-
-
29 CFR 1910.1043(c) Permissible Exposure Limits -- Novel Work Shifts. The permissible exposure limits for cotton dust shall not be adjusted for novel work shift schedules. The work category for cotton dust, as found in the IHFOM, page II-48, is changed from category 4 to category 1C.
-
29 CFR 1910.1043(d) Exposure Monitoring and Measurement.
-
Monitoring With An Equivalent Sampler. In place of the vertical elutriator, employers are permitted to use an alternate sampling device, provided that the employer establishes equivalency as specified by the standard. To investigate compliance with this provision, do the following:
-
Obtain copies of all data and reports used by the employer to establish equivalency.
-
Obtain copies of the employer's calibration and maintenance procedures and schedules with applicable data.
-
Obtain assistance on equivalency determination by sending copies of the materials obtained through the Office of Field Coordination to the Directorate of Federal Compliance and State Programs.
-
-
Evaluating Employer's Sampling and Monitoring. Although the employer is not required to sample using the same strategy prescribed for OSHA in this instruction, the employer's data must be representative of all employees exposed to cotton dust. The following are guidelines for evaluating the adequacy of the employer's monitoring program:
-
There is no action level for cotton dust sampling. Monitoring is required in each place of employment in which cotton dust is present.
-
Separate exposure determinations are required for each shift.
-
Evaluate the data collected during the inspection, particularly that described in Chapter I, E. 1., of this manual.
-
Determine the adequacy of the employer's sampling location. This determination requires the use of professional judgment. Document the reasons for accepting or rejecting the company's sampling locations.
-
Even though the employer may have selected proper sampling locations, the results may not represent employee exposure because the instruments were not used properly.
(1) Refer to Chapter I, E. 1 and Chapter VII of this manual, and Appendix A of the standard, for correct procedures for collecting vertical elutriator samples. (2) For instruments other than vertical elutriators, use good scientific techniques and the manufacturer's recommended operating instructions to evaluate the employer's procedures. An alternate instrument can be capable of supplying equivalent results to the vertical elutriator, but may not, in fact, give equivalent results because the instrument is not used properly. -
Compare OSHA exposure determinations to the employer's exposure determinations.
-
-
-
29 CFR 1910.1043(e)(4) Mechanical Ventilation. The following guidelines will be useful to assess compliance with this provision:
-
Review a copy of the employer's written program, if there is one.
-
Review the criteria used by the employer to assess the adequacy of ventilation performance, and the criteria used to signal that corrective action is required, such as the condition of duct work and the pressure at various locations in the duct work.
-
Review records of measurements. The standard requires measurements at least every 6 months.
-
Interview plant personnel to determine what action is taken if ventilation is defective.
-
Find out how long it takes for a defective system to be worked on after it has been diagnosed as defective.
-
Ask the employer to point out some of the locations used to make the ventilation measurements.
NOTE: Ventilation measurements taken at elbows are unacceptable.
-
Ask the employer to describe the mechanisms for measuring ventilation, e.g., magnehelic gage, monometer pilot traverse, etc.
-
Take appropriate notes to document the procedures and deficiencies.
-
-
29 CFR 1910.1043(f) Use of Respirators.
[Reserved.] -
29 CFR 1910.1043(g) Work Practices. The following are some guidelines for investigating compliance with the work practices provision:
-
Obtain a copy of the work practice program.
-
During the inspection, investigate and document whether:
(a) The employees follow the work practices. (b) The work practices are adequate. -
If there are work practices that are not used, but which may be applicable, document or reference them in the notes.
NOTE: Mail a copy of the employer's written program to the National Office, Office of Compliance Programming, through the Office of Field Coordination. Copies of selected programs will be circulated to the field for information to be used for evaluating other work practice programs under investigation.
-
-
29 CFR 1910.1043(h) Medical Surveillance. A complete inspection for the cotton dust standard shall include investigation of the medical surveillance program.
-
OSHA Access to Medical Records. Provisions at 29 CFR 1910.20 and 29 CFR 1913.10 define OSHA's right of access to the employer's medical records, and describe the procedures for handling such access. No special instructions for applying these provisions to cotton dust inspections are offered here. Instead, refer to the OSHA Instructions specifically written for implementing 1910.20 and 1913.10.
-
Extent of Medical Surveillance Investigations. Industrial hygienists shall systematically investigate all provisions of 29 CFR 1910.1043(h), whether or not they are discussed below.
-
Opportunity for Employee Representative to Accompany Compliance Officer.
-
The compliance officer will normally interview various parties (management, physicians, nurses, industrial hygienists, employees) and examine medical records to determine if the employer is complying with the medical surveillance requirements of the standard. Because those activities are part of the physical inspection of the workplace, the compliance officer must give the employee representative an opportunity to accompany him or her during this part of the inspection.
-
The only restriction on the employee representative's participation would be during the examination of personally identifiable medical records; and then only in the case of records for which the employee representative has not been given written consent for access by the employee involved.
-
-
Evaluation of 29 CFR 1910.1043(h)(1)(ii) -- Physician's Supervision. This provision requires that all medical examinations and procedures be performed by or under the supervision of a licensed physician. Document whether the physician exercises adequate supervision over the program. In investigating the adequacy of the physician's supervision, consider the following:
NOTE: Where a physician is regularly present in the plant and exercises ongoing personal observation of the employees' work and medical conditions, it is likely that the physician does exercise adequate supervision of the program as required by 29 CFR 1910.1043(h) (1)(ii). In such cases, exact adherence to the considerations listed below may not be necessary. -
The physician must have a system of checks to ensure that pulmonary function tests are performed correctly, calculations of lung function parameters from spirograms of the tests are accurate and schedules are met. A system of checks would consist of elements such as:
(1) Selecting and reviewing (on a random or some other predetermined basis) spirograms and the calculations of lung function parameters. (2) Following up any deficiencies that such reviews surface with corrective action; e.g., by meeting with and instructing the personnel who are administering the pulmonary function tests and calculating lung function parameters. (3) Making occasional on-site visits while pulmonary function tests are being administered. -
The physician must have provided the nurse or technician with instructions on action to take, based on certain pulmonary function test results and answers given on the medical questionnaire. For example, this would include criteria for when a physician (not necessarily the supervisory physician) should personally examine an employee.
-
Although the physician need not personally examine every employee during each physical examination, in a properly supervised medical surveillance program, the supervising physician prescribes when employees must be personally examined by a physician. Document whether the physician prescribes that a physician must personally examine employees who:
(1) Have bronchitis. (2) Have bysinnosis grade 1 or 2 as determined from the questionnaire. (3) Have dyspnea, grade 3 (as determined from the pulmonary questionnaire). (4) Have no evidence of chronic ventilatory impairment (that is, the FEV1/FVC ratio is greater than 0.75), but the decrement in FEV1 is greater than 10% (as measured according to 29 CFR 1910.1043(h)(2)(iii)). (5) Have evidence of slight to moderate irreversible impairment of ventilatory capacity (e.g., the FEV1/FVC ratio is between .60 to .75) and the decrement in FEV1 is greater than 5% (as measured according to 29 CFR 1910.1043(h)(2)(iii)). (6) Have special health problems such as cardiovascular disease. -
The determination that a medical surveillance program is not properly supervised is a qualitative judgment, based on the information gathered during the inspection. A citation may not be appropriate for some minor deficiencies in supervision of the medical surveillance program, which can be resolved through notifying the employer by letter. Before any citation for violation of this provision is issued, the industrial hygienist (through the Regional Office) must consult with a National Office Medical Officer, who will provide assistance on making that judgment.
-
-
Initial Medical Examination. The following interpretations are provided to clarify several points related to the initial medical examinations required by 29 CFR 1910.1043(h)(2).
-
Triggering level. 29 CFR 1910.1043(h)(2) requires that the employer shall provide each employee who is or may be exposed to cotton dust with an opportunity for medical surveillance.
(1) This means that medical surveillance is required independently of the magnitude of cotton dust air concentration levels, and depends upon an employee exposure to any detectable amount of cotton dust as measured by the vertical elutriator. (2) Employees exposed to cotton dust for a small part of the day must be given an opportunity to participate in the medical surveillance program. Similarly, employees who are exposed routinely to cotton dust, but not every day, must be given an opportunity to participate in the medical surveillance program. -
Medical Examination Prior to Initial Assignment. 29 CFR 1910.1043(h)(2) requires that, for new employees, the medical examination shall be provided prior to initial assignment to jobs where they will be exposed to cotton dust. Some employers may not have the resources at the plant or in the nearby community to provide the examination. The usual procedure for such employers is to contract out the medical program to a medical service that periodically visits the plant with a mobile unit having the necessary equipment. When assessing the timeliness of the initial medical examination in such circumstances, the industrial hygienist shall consider the following:
(1) It is crucial that the examination be provided prior to initial assignment if the employee will be exposed above the permissible limit and have to use a respirator. (2) The fact that the employer must contract out the medical surveillance program with a mobile medical service is no justification for not providing the examination until after an employee is assigned to a job where he/she is exposed to cotton dust. It is OSHA's position that the employer can provide timely examinations through alert management and advance planning.
-
-
Questionnaire Interpretations. 29 CFR 1910.1043 (h)(2)(ii) requires that the standardized questionnaire must be a part of the medical surveillance program to measure the subjective respiratory changes in workers exposed to cotton dust. The questionnaire shall not be revised or rearranged. When assessing compliance with this provision, the industrial hygienist (following the provisions of 29 CFR 1910.20, 29 CFR 1913.10 and the OSHA instructions for implementing these provisions) shall:
-
Investigate to determine whether the questionnaire is given in a timely and proper manner, and to the proper employees. This can be done by interviewing the persons who conduct the questionnaire survey and employees, and by examining the records.
-
Interview the employees in privacy and assure them: that the information they provide will be kept confidential if they wish it to be.
-
-
Periodic Examinations. 29 CFR 1910.1043 (h)(3)(ii) (c) requires periodic examinations every 6 months where, in the opinion of the physician, any significant change in questionnaire findings, pulmonary function results, or other diagnostic tests has occurred. When investigating compliance with this provision, the industrial hygienist shall:
-
Determine if any employees have been placed in this category.
-
Interview medical personnel to find out criteria used, if any, to place an employee in this category; and review and copy any written procedures as necessary.
-
Consider that some employees may be covered by this provision based upon the physician's medical opinion. Some situations that may indicate a need for a physical examination every 6 months are listed in I. 4. c. of this chapter.
-
-
Frequency of Physician's Written Opinion -- 29 CFR 1910.1043(h)(5).
-
On each occasion an employee takes a medical examination that the standard requires the employer to offer, the employer must obtain and furnish the employee with a copy of a written opinion from the physician containing the elements delineated under 29 CFR 1910.1043(h)(5).
-
Even where the physician does not personally examine all employees, he will be in a position to give a written opinion for all employees examined if he is adequately supervising the medical program. Accordingly, if an employer who is in violations of 29 CFR 1910.1043(h)(5) claims that the physician cannot provide written opinions for all employees who must be given examinations, this merely indicates inadequate supervision by the physician and a concurrent violation of 29 CFR 1910.1043(h)(1)(ii), q.v.
-
-
Content of Physician's Written Opinion -- 29 CFR 1910.1043(h)(5). The assessment of increased risk of health impairment by the examining physician is an integral part of the medical surveillance program; this requirement is common to virtually all OSHA health standards. Employers will be in violation of 29 CFR 1910.1043(h)(5)(i)(a), (b) and/or (c) if the physician they use does not give a complete, fully developed opinion which is based on evaluating and weighing all relevant information received.
-
Examination and Test Results. In investigating whether the content of the physician's written opinion satisfies 29 CFR 1910.1043(h)(5)(i)(a), consider that the results of the medical examinations and tests are interpreted to include:
(1) The byssinosis grade according to Schilling's system. (2) The forced vital capacity (FVC) prior to exposure to cotton dust on the first day of the workweek. (3) The forced expiratory volume in 1 second (FEV1) prior to exposure to cotton dust on the first day of the workweek. (4) The percentage deviation from predicted FVC and FEV1 values. (5) The FVC and FEV1 4 to 70 hours after the onset of the employees' exposure to cotton dust on the first day of the workweek. (6) Any significant changes from previous examination results. (7) The dyspnea grade. (8) An identification of any abnormal examination results. (9) Diagnosis of a condition or illness. -
Health Risks and Recommended Limitations. In investigating whether the physician's written opinion satisfies 29 CFR 1910.1043(h)(5)(i)(b) and (c) some important points to bear in mind are:
(1) When developing an opinion as to whether an employee has any detected medical conditions which would place him at increased risk of material health impairment from exposure to cotton dust, and/or determining whether to recommend any limitations upon the employee's exposure to cotton dust, the physician must evaluate and weigh: (a) The results of the medical examination and tests. (b) The employee's subjective symptoms as determined through the questionnaire. (c) Information from the employee's previous medical examinations (this is the information that 29 CFR 1910.1043(h)(4)(v) requires the employer to provide). (d) The employee's medical history. (e) Other medical information supplied by the employee. (f) The employee's exposure level of anticipated exposure level. (2) When determining whether to recommend limitations upon the employee's use of respirators, the physician must: (a) Identify and evaluate the inhibiting effects of any afflictions such as: º Sinusitis. º Facial dermatitis. º Chronic obstructive pulmonary disease (byssinosis, chronic bronchitis). º Dyspnea. º Cardiovascular disease. º Claustrophobia. º Hyperventilation. º Other respiratory disease. (b) Weigh any second physician's opinion that may be provided that the employee cannot wear a respirator. (c) Take into account the physical exertion required by the employee to perform his/her job. (d) Take into account the duration and frequency that the employee will be required to use the respirator. (3) Diseases correlating with answers to certain questions in the Respiratory Questionnaire for textile workers, Appendix B-I, are: Disease Employee Response to Questionnaire. Bronchitis º Yes to question 38 as a minimum. Byssinosis º Yes to question 47(1)= Grade 1/2 º Yes to question 35(1)= Grade 1/2 º An increase in the Grade of Breathlessness (from questions 51 through 60) = Grade 1 º Yes to question 47(2) = Grade 1 º Yes to question 47 (2 + 3) or (2 + 3 + 4) or (2 + 3 + 4 + 5 ) or (2 + 3 + 4 + 5 + 6) = Grade 2 Dyspnea º This is to be determined from only those dyspnea questions, 51 through 55, which are logged as question 56. (4) The physician must include in his written opinion the basis for discounting any reports of symptoms which could serve as indicators of disease. (5) A normal size mill is likely to have some employees who cannot wear a negative pressure respirator. Hence, if no employees have received a physician's recommended limitation on the use of this type of respirator, this suggests the need for a deeper investigation of the medical surveillance program.
-
-
Physician's Written Opinion -- Investigation and National Office Consultation.
(1) Some important measures to take when investigating compliance with 29 CFR 1910.1043(h)(5) are: (a) Determine whether information provided in the Respiratory Questionnaire is used in developing the medical opinion, and how it is used. (b) Determine if the physician is aware of 29 CFR 1910.1043(f)(2)(v), which provides for employee transfer; and if not, whether the physician's opinion would change upon awareness if the transfer provision. (c) Interview the physician and medical personnel to determine the criteria used to evaluate a person's ability to wear a respirator, and obtain copies of any written criteria as necessary. (2) The table, page II-14 of this chapter, serves as and aid to compliance officers when investigating compliance with 29 CFR 1910.1043(h)(5). This table was inadvertently left out of Appendix D. to this standard. (3) Consultation with the National Office. Before issuance of a citation based upon substantive deficiencies in the medical opinion, the Area Directors, through the Region, are requested to consult with the Office of Field Coordination and the OSHA Medical Office.

-
-
29 CFR 1910.1043(1), Observation of Monitoring.
-
For the purposes of this paragraph, "designated employee representatives" include:
-
Employees of the workplace selected by their co-workers to be employee representatives.
-
Officials of a labor union local that serves as a bargaining unit for employees at the workplace.
-
The business agent for the union local.
-
Industrial hygienists, physicians, nurses, safety professionals, and the officials employed by the National Office(s) of the local(s).
-
-
Observation of monitoring rights include:
-
The right to receive, upon request, sufficient advance notice to allow a complete observation of the monitoring. An employer who does not honor this request violates 29 CFR 1910.1043 (1)(1), in that he fails to provide an opportunity to observe the monitoring.
-
The right to accompany the employee during all phases of sampling and analysis.
-
The right to ask employees working in the area where monitoring is being performed questions pertinent to establishing how typical the present conditions are. An employer who does not permit an observer of the monitoring to question employees in this regard violates 29 CFR 1910.1043 (l)(3)(iii), in that the is preventing the observer from recording the full results obtained. The values of the airborne cotton dust concentrations at the place of exposure are not meaningful unless they are accompanied by notations indicating how typical the conditions were when these values were being determined.
-
The right to an explanation of how the sample results (perhaps from several vertical elutriators) are translated into employee exposure values.
-
-
Chapter III has been deleted (See OSHA Instruction CPL 2-2.31 CH-1)
Chapter IV has been deleted (See OSHA Instruction CPL 2-2.31 CH-1)
WALKAROUND: PICKING AREA
-
Purpose. This chapter supplements Chapter 1, E., of this manual by showing an example of the sort of information which may be obtained during the walkaround.
-
Scope.
-
This chapter presents the information obtained and the plant layout sketch made during a hypothetical walkaround to evaluate an employer's monitoring program in a picking area. The layout sketch is Figure V-1 of this manual, and frequent references will be made to it in this chapter.
-
This information will also serve to develop an OSHA sampling strategy, if necessary, and to evaluate the employer's compliance program.
-
The information content obtained during an actual walkaround may vary greatly from that shown here. The professional opinion of the OSHA industrial hygienist conducting the inspection will thus play an important role.
NOTE: An industrial hygienist who is very familiar with textile operations may not need to document this information during the walkaround, but may wish to do it during the sampling portion of the inspection.
-
-
Picking Area. The hypothetical picking room is located on the west end of the second floor of the building. It is separated by a wall from the carding room, but the doorway between the two rooms is usually open. The floor space of the room is approximately 40 feet by 55 feet. (See Figure V-1.)
-
Picking Personnel.
-
A single supervisor has responsibility for both the picking and carding areas. The supersisor spends about 2 hours per day in the picking room.

-
Four employees work in the picking room:
-
Two of these employees function as picker operators.
-
One operates the garnett.
-
One works as a mechanic.
-
-
-
Picking Operations. There are five different types of machinery operations that go on in the picking room.
-
The Fiber Collection Hopper and Picker-Feeder Conveyor. Fibers are blown pneumatically through ducts from the opening room and into a feeder-hopper located in the picker room.
-
Normally, according to both a management representative and the picker operator, the feeder-hopper and picker-feeder conveyor do not require operator attention.
-
Occasionally fibers will become clogged or trapped at varios locations along this process flow, and it is necessary for one to work on the feeder line to free the clogged fibers. These intermittent work operations may occur 5 to 10 times during each work shift.
-
Tending to the feeder line is usually done by one or both of the picker operators, unless the problem is major and they require assistance. About 5 minutes per day per operator is spent at this task.
-
-
Pickers.
-
There are six pickers in this area. Since the pickers are fed automatically by the feeder conveyor system, the operator's primary responsibility is to doff the pickers.
-
The two picker operators usually work as a team and remove the laps from the end of the pickers, weigh them on a balance, and then place them onto racks for intermediate storage and transport to the card room.
-
The picker operators have some free time when they are not required to be involved in the actual doffing operation. During this time the operators usually position themselves out in front of the pickers where they can observe their operation. This is illustrated as "X1" and "X2" on Figure V-1.
-
Both operators also spend some time cleaning around the machine. The areas covered by the picker operators are designated by crosshatching on Figure V-1.
-
-
Garnetting of Drawing and Roving Waste.
-
One operator is responsivble for the operation of the garnett. (Note that this plant is unusual in that it has a garnett in the yarn manufacturing area.) The operator spends most of the time taking sliver or roving out of transport baskets and loading it onto the input conveyor to the garnett. This is illustrated as "X3" in Figure V-1.
-
The garnett operator is also responsible for sending the garnetted fibers back ti the opening room via a vacuum tube located in the opening room.
(1) The garnett operator wheels a large box, in which the garnetted fibers are collected, over to the area of the card room where this vacuum tube opening is located. (2) He then removes one side of the large box so that the fibers either fall or can be raked onto the floor. (3) Using the broomstick-like pole, the fibers are then poked up to the entrance of the vacuum tube, where they are sucked back to the opening room. -
The garnett operator thus spends about 4 to 6 hours of his work shift feeding the garnetted fibers back to the opening room, and the rest of the time cleaning up the general area of the garnett machine.
-
-
Reworkable Card Waste Hopper.
-
The card room employee responsible for card stripping usually brings baskets of reworkable card waste into the picker room and dumps it into the feed hopper.
-
The picker operators then turn the hopper mechanism on and off to feed various amounts of reworkable waste into the picker process feed line.
-
This reworkable waste feed hopper does not have an employee tending it on a continuous basis. It may, however, be a source of dust in the picking room.
-
-
Dust Control. Despite enclosures and hoods that have been instituted, the picking area is visibly dusty. Along the feed conveyor, the doors of the enclosure are often left open. The dust control system is installed on the pickers as follows:
-
Various hoods and collection devices over the pickers and the garnett collect dust and blow it into a filter room.
-
The air cleansing system contains a large cylindrical filter through which the air from the local ventilation system must pass, filtering out the dust before the air is returned to the room.
-
Two or three times a day the picker room mechanic sweeps up air cleaner waste that is dumped onto the floor, puts it into a basket, and transports it to the vacuum collection tube (located in the carding room) leading to the opening room.
-
At the vacuum collection tube the waste materials are dumped on the floor and swept into the vacuum tube inlet to send the waste particles and fibers back to the opening room.
-
This waste fiber is used in the batting that is used for mattress manufacturing. The mechanic has a high potential for dust exposure while gathering this waste and sending it back to the opening room by sweeping it into the vacuum tube opening.
-
-
-
Shift Work. The picking room normally works only one full shift, although it occasionally works 4 hours on the second shift. Normal work shift hours are 7:30 a.m. until 3:50 p.m. The pickers are often shut down for 30 to 60 minutes for lunch, which starts at about 10:30 or 11:00 a.m. Generally, the garnett is shut down while the operator goes to lunch.
-
Electrical Outlets. There are six electrical outlets located in the picker room, which are adequate to allow sampling of this area.
-
Employer's Measurement Results. The employer used six vertical elutricators at the locations shown in Figure V-1 by . Employee exposure was determined by averaging six measurements, and assuming that all persons in the picking room had the same exposure. The following narrative need not accompany the case file, but is included here for the sake of example. The case file should contain copies of the employer's records.
-
Results of the employer's exposure data were as follows:
April 22, 1980 Micrograms/Cubic Meter (Name), picker operator 1 377 (Name), picker operator 2 377 (Name), picker mechanic 377 (Name), garnett operator 377 (Name), foreman, picker/card 328 October 30, 1980 (Name), picker operator 1 331 (Name), picker operator 2 331 (Name), picker mechanic 331 (Name), garnett operator 331 (Name), foreman, picker/card 280 -
Because it did not seem reasonable that four workers should have the same exposure, the industrial hygienist obtained a copy of the raw data as follows:
DATE Picker Room
Sample LocationConcentration 4/22/80 A 522 4/22/80 B 296 4/22/80 C 406 4/22/80 D 353 4/22/80 E 300 4/22/80 F 389 10/30/80 A 497 10/30/80 B 315 10/30/80 C 425 10/30/80 C 425 10/30/80 D 324 10/30/80 E 205 10/30/80 F 225 -
Analysis of the employer's data would show the following:
(a) The values of the raw data are reasonable for a poorly controlled picking room. The range of values is also reasonable. (b) Since some of the employees do not spend any time where some of the samplers are located, the averaging of all the results is not appropriate. (1) For the picker operators, locations B, C and D should be averaged. The picker operator's exposure would thus be: 4/22/80 352 10/30/80 354 (2) Location E is not useful. It should be moved to the vacuum opening. (3) For the garnett operator, the exposure should be time-weighted: 7 hours at location A, and 1 hour at the new location E (near the vacuum opening). (4) The mechanic's exposure should be calculated from all six locations. (5) The foreman's exposure should be time-weighted for time spent in the card room. The exposure for the picking room would be 2 hours at the average of all six locations.
-
-
Air Curents. The only air currents detected were inward movements from the cleaner card room. Arrows on Figure V-1 show the air flow. Additional ventilation information would be obtained during the sampling portion of the inspection.
-
Purpose. This chapter presents several examples of sampling strategies developed for an inspection of a hypothetical textile mill.
-
Scope. These examples are only intended to demonstrate possible OSHA sampling strategies that will make the best use of OSHA resources while accomplishing the inspection goals. Other strategies that may be equally effective could be chosen. In any case, the examples will give only an idea of the strategy to develop. Professional judgment will be necessary to develop strategies for actual field situations.
NOTE: It should be emphasized that these strategies are developed for OSHA compliance purposes only, and do not necessarily reflect the employer's sampling strategy. -
Picking Area. This is the sampling strategy for the hypothetical situation described in Chapter V of this manual.
-
The two picker operators can easily be sampled with five vertical elutriators, located within the crosshatched section of Figure V-1. The duties of these employees meet all the sampling criteria found in Chapter I of this manual.
-
Unlike most picking operations, these picking operators work as a team. Their exposure would therefore be the same. The sample results are:
OSHA Sample Results Location Concentration
Microgram/Cubic Meter#1 296 #2 372 #3 406 #4 315 #5 355 -
To calculate the exposure during the time spent in the picking area, find the arithmetic average of the five sample results. The exposure would be 296 + 372 + 406 + 315 + 355 or 349 micrograms
5
per cubic meter. -
To calculate the 8-hour TWA exposure, the time spent away from
the picking area must be considered. In this example, the only time
spent away from the area is one-half hour spent eating lunch in a
lunch room equiped with a air filtration system. Hence, we assume no exposure to cotton dust during this period, Also in this example the
sampling duration was 6 1/2 hours, which, based upon professional
judgment, provided results that were representative of the 7 1/2 hour
TWA exposure in the picking area. Thus, taking into account the
above facts, the 8-hour TWA exposure would be (349)(7.5) + (0)(0.5) =
8
327 micrograms/cubic meter. -
This compares reasonably with the employer's values of 352 and 354 as calculated on page V-8 of this manual.
-
-
Carding Area.
-
Description. The carding area is located on the west end of the second floor of the old spinning building adjacent to the picker room. The east end of that same large area is devoted to drawing and roving. The drawing and roving area is not physically separated from the carding area, but from a supervisory standpoint the two areas are operated separately and served by two different ventilation systems. The dimensions of the room are approximately 68 feet by 54 feet. Figure VI-1 is a sketch of the carding area.
-
Carding Personnel. Thirteen employees work in the carding area, in addition to the supervisor, who has responsibility for picking.

-
Two of these 13 employees actually work in an adjacent room operating a Hollingsworth threadmaster. The threadmaster reworks waste yarn, separating it into fibers so that it may be utilized in the mattress manufacturing operation.
-
Four carding area employees work as card tenders.
-
Two carding area employees work as card mechanics.
-
Two carding area employees serve as utility men, filling in on any jobs where they are needed.
-
Two carding area employees work as card strippers.
-
One carding area employee works as a porter, doing clean-up work.
-
-
Carding Operations.
-
Card Tenders. There are 134 cards in the carding area. Each card tender tends approximately 34 cards, which amount to two rows of cards.
(1) The card tender places the laps from the picker room on the feed end of the card and doffs the cans of silver from the doffer's side of the cards. (2) Each card must be doffed about every 3 hours. The doffing operation takes just a few minutes, but the 34 cards in the card tender's control are randomly doffed as required. (3) The card tender has time between the doffing operations to clean around the machines and to blow down the machines, a process which is done once each shift. Typically, the blow-down operation is done shortly after lunch break. (4) The card tender is responsible for blowing down the machines and cleaning up on the doffer side of the machines. The hatchmarks on Figure VI-1 indicate the working area of one card tender. -
Card Strippers. dust and lint collection systems are installed on all of the cards, and the collected dust and lint from each row of cards goes to Pneumafil collection houses.
(1) One of the two card strippers is responsible for cleaning these Pneumafil collection houses. This operation is done once each shift, and usually is done the first thing in the morning. (2) The other card stripper is responsible for cleaning the waste out from under the cards. The waste from the front of the card usually is cleaned once each shift. Usually, this operation is done the first thing in the morning, and completed by 10:00 to 10:30 a.m. The card stripper uses a rake-like device to rake the waste out from under the cards, puts it into a basket, and later in the day, sends the waste through vacuum collection ducts back to the opening room. (3) During the rest of the day both card strippers do cleaning on the cards. Both card strippers have the possibility of very high dust exposure when they are cleaning the waste or collecting the waste from the cards, or when they are sweeping it into the vacuum collection duct for transport to the opening room. -
Card Mechanics and Utility Operators. The card mechanics and utility operators work throughout the card room and have no special station assignment. Their exposure varies dramatically from day to day.
-
Porter. The porter is responsible for cleaning the bathrooms and the back aisles of the card room. Exposure varies considerably depending on personal work practices.
-
Electrical Outlets. There are only eight electrical outlets in the card room. It may prove to be quite time-consuming to install temporary wiring cords from these outlets tothe areas where cotton dust sampling should be done to properly evaluate employee exposure. Because of the large size of the room and the large area over which the employees move during their work shift, it will be necessary to run some temporary wiring more than 100 feet depending upon the sampling location. The location of the electrical outlets are shown as E on Figure VI-1.
-
-
Sampling Strategy.
-
Employee Selection.
(1) Out of 11 employees in the carding area, only 4 have designated work areas. For these four employees, the designated work areas cover large sections of the carding area. Most of the other employees have duties that take them throughout the carding area. (2) It will be most advantageous to sample the card tender. Because the carding area is large, only one tender could be sampled with five vertical elutriators. -
Location Selection. The location selected to adjacent to the drawing area and near the electrical outlets. The vertical elutriators are scattered in the carding area worked by one card tender. The sampling locations are shown on Figure VI-1.
-
Exposure Calculations. The card tender's exposure is calculated by arithmetically averaging the five vertical elutriator sample results.
-
Other Employees.
(1) Often, it will be difficult for OSHA to measure the exposure of employees who move throughout large areas of the plant. The employer, however, could easily move the vertical elutriators throughout the plant from day to day to measure these employees' exposure (2) However, it has been noted that the card stripper mechanics and porter could have high exposure levels that depend upon their duties and work practices. To ensure protection for these workers: (a) Review the employer's data to determine exposures. (b) If the written work pactice program required under 29 CFR 1910.1043(e)(3) (ii)(f) has been prepared, review it carefully. It must be prepared no later than March 27, 1981. (c) While sampling, as one industrial hygientist monitors the instruments and the carding area being sampled, another should observe the duties and work practices of the workers. (d) Evaluate this information to determine if there is compliance with the work practices required under 29 CFR 1910.1043(g). (e) Based upon observations, determine if the written work practice program is adequate.
-
-
-
Drawing and Roving Areas.
-
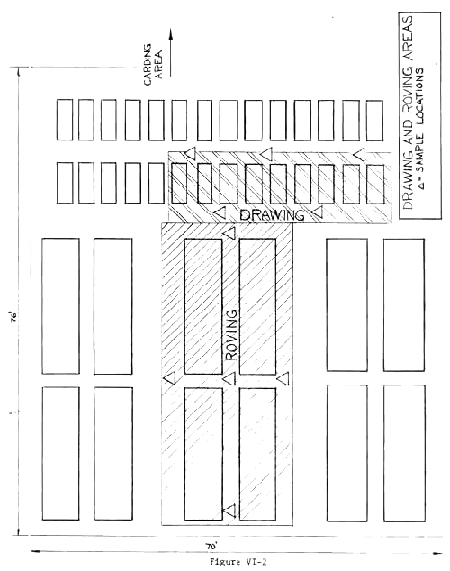
Description. The drawing and roving areas are located adjacent to the card room. The drawing frames are separated from the carding machines by an aisleway, but there is no physical barrier. Neither is there a physical barrier, other than an aisleway, separating drawing frames from the roving frames. These areas are approximately 70 feet by 76 feet in extent. They are illustrated in Figure VI-2.
-
Personnel and Operations.
-
Drawing. The mill has 28 drawing frames, each with two-position delivery. The frames are located in two long rows, extending from one side of the room to the other.
(1) Three employess work as frame tenders on these machines. One employee tends 9 machines on the first row, another tends 10 on the second row, and third handles all of the remaining drawing frames. (2) A second shift is conducted in the drawing area with two employees, each running 9 or 10 frames. Most of the blow down and major cleaning is conducted on the second shift. -
Roving. The mill has 12 roving machines (or slubbers). One roving machine tender can operate two machines. A second shift is conducted in the roving area, and most of the blow down and amjor cleaning is conducted on the second shift.
-
-
Electrical Outlets. There are 14 electrical outlets in the roving area, located on roof support pillars. These should prove sufficient for OSHA purposes. However, some cords will have to be run for distances up to 50 feet.
-
Sampling Strategy.
-
Samplers are so arranged in the roving and drawing areas as to permit detailed sampling that accurately establishes individual personal exposure.
-
Sampler locations are selected to sample in detail the exposure of one drawing frame tender and one roving frame tender.
-
The layout drawing for these areas, Figure VI-2, shows the vertical elutriator sampling locations. Employee exposure is determined for the operators of the machines marked by cross-hatching.

-
Five vertical elutriators are used to sample the drawing machine operator, and five for the roving machine operator.
-
The inspection team consisting of two industrial hygienists spends 2 days sampling, each day concentrating on an area of the plant.
-
-
Exposure Calculations.
-
Drawing. The exposure of the drawing machine operator is calculated by averaging the five samples located in the employee working area shown in Figure VI-2.
-
Roving. The exposure of the roving machine operator is calculated by averaging the five samples located in the employee working area shown in Figure VI-2.
-
-
-
Spinning.
-
Description. The spinning room is one of the largest areas of the textile mill.
-
It includes the spinning machinery, and also winding machinery which is located on one side of the room.
-
The room contains 76 spinning frames, each with approximately 200 spindles, and 15 semiautomatic winding machines.
-
The spinning and winding areas are separated by a fairly wide aiselway, but the same air handling and air conditioning system servicces the entire area.
-
One small area in the corner of this room is devoted to a waste reworking area where waste roving and yarn is torn apart to reclaim the fibers for reuse.
-
Figure VI-3 is a sketch of the spinning and winding areas.

-
-
Personnel and Operations.
-
Approximately 35 people work in the spinning frame area of the mill. The 76 spinning frames are divided into two areas, each managed by a foreman, and each foreman has approximately 15 employees under his direction.
-
The employees are responsible for spinning, doffing, maintenance and cleaning.
-
The mill produces three different size yarns: 7's cotton count, 9.5's cotton. and 11.5's cotton count.
-
When producing the coarser yarn (7's cotton count), a spinner usually is assigned to operate 6 spinning frames and a doffer to handle 12 spinning frames. When producing the coarser yarn, the frames generally must be doffed three times each shift.
-
When producing the finer yarn (9.5's and 11.5's cotton count), a spinner usually is assigned to operate 5 spinning frames and a doffer to handle 10 spinning frames. In producing the finer yarns, the frames typically must be doffed twice each shift.
-
The hypothetical spinning mill is considerably short on employees. Usually, a number of frames are not operating beacause of an operator shortage for that particular day. Utility men and maintenance men are often used as spinners or doffers to operate a full job or half a job, in an effort to keep as many frames operating as possible.
-
-
Electrical Outlets. There are four 110 volt electrical outlets in the spinning area, as shown in Figure VI-3.
-
Sampling Strategy.
-
The emphasis in spinning area sampling will be on attempting to collect a sufficient number of samples to evaluate the exposure of two spinners and one doffer working on frames.
-
Vertical elutriators are placed in the aisles where the workers spend their time. Since the operators move from one machine to the next, it is necessary to use several vertical elutriators to define the exposures. In this case, five elutriators are used.
-
-
Exposure Calculations. The exposure of one spinner is calculated by averaging samples from locations A, B and C, as shown on Figure VI-3. The exposure of the second spinner is calculated by the average C, D and E. The exposure of the doffer is calculated by averaging all five samples.
-
-
Winding.
-
Description. This is the same as for the spinning area, given in paragraph F.1.
-
Personnel and Operations.
-
The winding area has approximately 15 winding frames and 20 employees. One foreman is responsible for all of the work in the winding area.
-
Each winding machine requires almost constant attention of an operator. The winding machines are semiautomatic, and the operator sits at a fixed location, places yarn bobbins in a magazine and removes yarn packages from a traveling conveyor.
-
The operator spends approximately 7 1/2 hours at this fixed location, and one-half hour correcting problems up and down the winding frame line.
-
-
Waste Reclaiming Area. The small waste reclaiming area located in the corner of this large room is actually an operation which is the responsibility of the card room supervisor.
-
The equipment in this area consists of feeder hoppers and two specially equipped cards.
-
Employees manually feed roving and yarn waste into the hoppers, remove the stock, and put it in boxes for transport back into the process line. Two employees typically work in this area.
-
-
sampling Strategy.
-
In the winding area, the operators remain relatively stationary. Vertical elutriators are placed near the job location.
-
For this example, three positions are measired at the locations shown on Figure VI-3 as "F", "G" and "H."
-
To measure the concentration while the operator tends to correcting problems down the line, two elutriators are placed in the aisleways near the machine at "I" and "J" on Figure VI-3.
-
It was decided that no samples would be collected in the waste reclaiming area during this hypothetical inspection, because the winding area seemed more important.
NOTE: A different sampling strategy could have been developed, using only three vertical elutriators in the winding area and two elutriators in the waste reclaiming area.
-
-
Exposure Calculations. For the winding operators, exposure would be time-weighted, as follows:
Exposure of 1st winder =
(7.0)(Sample F) + (0.5)(Sample I) + (0.5 lunchtime)(0)
8Exposure of 2nd winder =
(7.0)(Sample H) + (0.5)(Sample I + J) + (0.5 lunchtime)(0)
2
8Exposure of 3rd winder =
(7.0)(Sample G) + (0.5)(Sample J) + (0.5 lunchtime)(0)
8 -
-
General Operation Procedures. In general, follow the procedures for sampling with the vertical elutriator, and the procedures for analyzing the samples, which are given in Appendix A of 29 CFR 1910.1043. Specific exceptions and additions are presented in this chapter. In the interest of continuity, a few of the sampling and analytical procedures described in appendix A are repeated.
-
Use of Professional Judgment. These procedures are good operating practices, but not the only procedures that will provide correct results. Minor deviations may not substantially affect the sampling results.
-
Instrumentation. Compliance samples shall be collected with the vertical elutriators (VE's), as provided in 29 CFR 1910.1043(d)(1)(ii) and elsewhere in the standard. OSHA has two types of vertical elutriator: one has a constant flow regulating device; the other maintains constant flow by an orifice. Both are equipped with rotameters. Most of the instruments are electrically powered, but battery powered ones are available.
-
Flow Rate. Collect samples at 7.4 + 0.2 liters per minute.
-
Filter Cassettes. The filter cassettes for vertical elutriator sampling are 3-piece and 37 mm diameter. The filters are 5 micron pore size, 37 mm diameter, and made of polyvinyl chloride.
-
Preparing for Sampling.
-
Obtaining Instruments. Not all Area Offices will be equipped with vertical elutriators. It may be necessary to borrow elutriators, through the Regional Office, from another Area Office.
-
Number of Instruments. For a typical textile mill, plan on taking seven vertical elutriators and four personal pumps on an inspection.
-
Transportation. Four vertical elutriators will fit into a compact size station wagon.
-
Preweighed Cassettes. Approximately 20 cassettes containing preweighed filters must be brought to the inspection for each sampling day. This will provide a sufficient number of cassettes and filters for operating 5 VE's and 2 peronal pumps, and will supply the necessary blanks. Use the following procedures:
-
Weigh the filters according to the IHFOM, Chapter X, pages 6. Do not, however, desiccate the filters. Report three significant figures.
-
The same person who preweighs the filter should also post-weigh the filter, using the same balance if feasible.
-
In addition to filter cassettes for sampling, approximately 10 percent of all filter cassettes shall be control blanks.
(1) Do not use these for sampling, but remove the caps at the worksite and immediatley put them back in place. (2) Post-weigh the filters after returning to the office. (3) Calculate the weight change of the blanks. (4) Aversge the weight changes of the blanks for the same area and shift. (5) If the average weight change is positve -- i.e., the average weights of the blanks increased -- subtract this average weight change from the weights of the cotton dust samples; if the average weight changes is negative, add this average weight change to the weights of the cotton dust samples.
-
-
-
Calibration Check.
-
Check the flow rate calibration setting for 7.4 liters per minute using a 2- or 3-liter burette.
-
Perform the calibration check in the Area Office before the instruments are taken to the field, and when they are brought back after use. However, the vertical elutriator should not be used more than 2 weeks without a calibration check.
-
The following is the calibration check procedure:
-
Set up the vertical elutriator as if to sample with filter and cassette.
-
Secure the rubber stopper made for calibration checks into the elutriator body inlet.
-
Wet the inside of the burette.
-
Set up the burette in the ring stand.
-
Connect the tubing between the elutriator and the burette.
-
Allow the elutriator to run 1 minute before taking readings.
-
Take readings by timing the bubble with a stopwatch.
-
Take three readings and average them.
-
Record the data.
-
-
-
Electrical Power. Refer to Chapter I, D. 3. through D. 8., of this manual.
-
Setting up the Elutriators in the Field.
-
Because of space requirements, vertical elutriators are transported disassembled. At the plant, reassemble the vertical elutriator where it is convenient. Assembly time is approximately 10 minutes per elutriator. If space can be provided by the employer, the vertical elutriators should be assembled at a central location and then carried to the sampling location. It is possible to carry the vertical elutriator throughout the plant while it is assembled.
-
For practical purposes, one person can carry only one vertical elutriator at a time. At the plant, the management may provide a hand cart to convey the instruments to the worksite.
-
Each industrial hygienist should know the sampling locations, and should place the vertical elutriator as designated on the plant layout sketch. All OSHA industrial hygienists at the plant must assist in setting up the elutriators.
-
If the vertical elutriator is carried while assembled, all parts must be rigidly secured. The filter must not be in the elutriator while it is being carried. The filter should be inserted after the vertical elutriator has been located at the sampling site.
-
If the employer can provide the space, the assembled vertical elutriators can be stored overnight in the plant (rather than disassembling the instruments each evening and putting them in the station wagon). Before transporting the elutriator at the end of the day, remove the filter and replace the cover caps.
-
-
Sampling.
-
After locating the elutriator and providing electrical power, run a clean, lint-free cloth through the elutriator body to remove any dust from the elutriator that may have accumulated since the last cleaning.
-
Obtain one of the three-piece cassettes. The cassettes must, of course, already have filters in them. Remove the top section and the small plug from the bottom section. Insert the cassette into the opening at the top of the vertical elutriator as is done for collecting a sample. Instead of collecting a sample, however, merely run the sampler 2 or 2 minutes, to assure that any extraneous dust that may have been left in the elutriator after the cleaning is flushed out.
-
Stop the sampler. Remove this cassette and insert another cassette for collecting the sample. Since the cassettes can ve loosened by vibration, the cassette must be inserted securely and taped to the vertical elutriator body using electrical tape to prevent leakage during sampling.
-
Secure the tubing to the pipe with tape, especially at the top where the weight of the tubing may cause a pinch at the cassette connection.
-
The following is a rough guide for changing filters during the sampling shift, depending upon the dust concentration.
Dust Concentration Changes Number of
Filters/Shift<300 0 1 300 to 600 1 2 >600 2 3 -
When changing the filter, the vertical elutriator pump must be turned off because the filter may be ruptured while working under negative pressure.
-
The filter can be changed simply by tilting the vertical elutriator body. For convenience, one end of the tape for sealing the cassette can be stuck to the body of the vertical elutriator so that it will be handy to reach while holding the vertical elutriator in the tilted position.
-
Make checks on the operation of the vertical elutriator every hour. When checking the operation, look to see if the cassette is taped down tightly, if all tubing is connected, and if the rotameter designates the proper flow.
-
-
Cleaning the Vertical Elutriator.
-
Clean the inside of the vertical elutriator body with a damp cloth each day after sampling.
-
Use a cloth or a brush to clean the dust from the pump motor and body each day after sampling.
-